Train Tracks
Train tracks take the direct load from passing wheels and transfer it to the supporting structure below. Their performance has a clear impact on track stability, wear rate, and overall operating safety, especially in lines with heavy traffic or industrial duty cycles. In early railway construction, iron rails were common, but they proved limited in strength and service life. Steel rails gradually became the practical choice as higher loads, longer rail lengths, and improved manufacturing methods were introduced. The familiar I-shaped rail profile is now widely used, while actual rail size and steel grade are selected based on operating conditions rather than a single universal rule.
Glory Rail supplies cost-effective steel rails covering light rail, heavy rail, and crane rail applications. All products are manufactured in accordance with major international standards, including GB, UIC, and ASTM.
Railroad Track Types
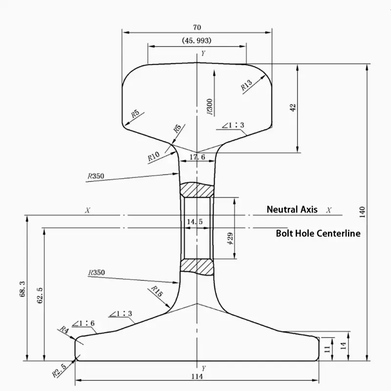
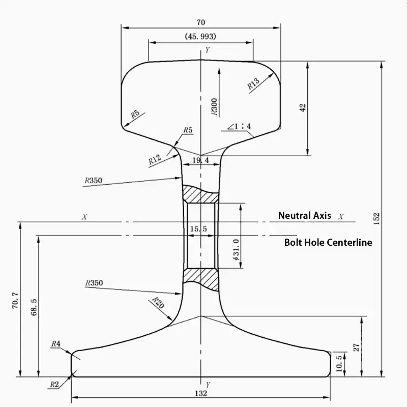
GB Standard Rail
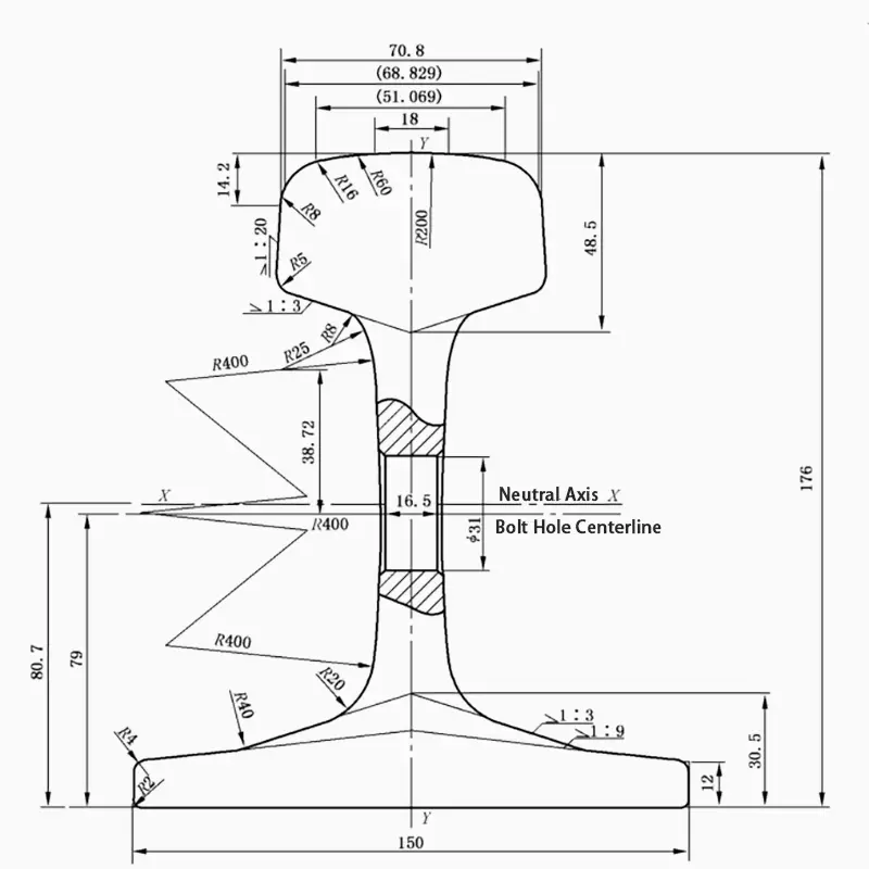
AREMA Standard Rail
ASTM A1 Standard Rail
| Size | Rail height(mm)A | Bottom Width(mm)F | Head Width(mm)C | Web Thickness(mm)t | Steel Grade | Weight(kg/m) |
| ASCE25 | 69.85 | 69.85 | 38.1 | 7.54 | 55Q | 12.2 |
| ASCE30 | 79.37 | 79.37 | 42.86 | 8.33 | 55Q | 15.2 |
| ASCE40 | 88.9 | 88.9 | 47.6 | 9.90 | 55Q | 19.84 |
| ASCE50 | 98.43 | 98.43 | 54.00 | 11.11 | 55Q | 24.855 |
| ASCE60 | 107.95 | 107.95 | 60.33 | 12.3 | 55Q | 30.1 |
| ASCE70 | 117.48 | 117.48 | 61.91 | 13.1 | 55Q | 34.5 |
| ASCE80 | 127.00 | 127.00 | 63.50 | 13.89 | U71Mn | 39.82 |
| ASCE85 | 131.76 | 131.76 | 65.09 | 14.29 | U71Mn | 42.3 |
EN13674-4 Standard Rail
| Size | Rail height(mm) | Bottom Width(mm) | Head Width(mm) | Web Thickness(mm) | Weight(kg/m) |
| 39E1(BS80A) | 133.40 | 117.50 | 63.50 | 13.10 | 39.77 |
| 45E1(BS90A) | 142.88 | 127.00 | 66.67 | 13.89 | 45.11 |
| 45E3(RN45) | 142.00 | 130.00 | 66.00 | 15.00 | 44.79 |
| 46E2(U33) | 145.00 | 134.00 | 62.00 | 15.00 | 46.27 |
| 49E1(S49) | 149.00 | 125.00 | 67.00 | 14.00 | 49.39 |
| 49E2 | 148.00 | 125.00 | 67.00 | 14.00 | 49.10 |
| 49E5 | 149.00 | 125.00 | 67.00 | 14.00 | 49.13 |
| Size | Rail height(mm) | Bottom Width(mm) | Head Width(mm) | Web Thickness(mm) | Weight(kg/m) |
| 50E1 | 153.00 | 134.00 | 65.00 | 15.50 | 50.37 |
| 50E2(50EB-T) | 151.00 | 140.00 | 72.00 | 15.00 | 49.97 |
| 50E4 | 152.00 | 125.00 | 70.00 | 15.00 | 50.46 |
| 50E5 | 148.00 | 135.00 | 67.00 | 14.00 | 49.90 |
| 50E6(U50) | 153.00 | 140.00 | 65.00 | 15.50 | 50.90 |
| 54E1(UIC54) | 159.00 | 140.00 | 70.00 | 16.00 | 54.77 |
| 54E2(UIC54E) | 161.00 | 125.00 | 67.00 | 16.00 | 53.82 |
| Size | Rail height(mm) | Bottom Width(mm) | Head Width(mm) | Web Thickness(mm) | Weight(kg/m) |
| 54E3(DINS54) | 154.00 | 125.00 | 67.00 | 16.00 | 54.57 |
| 54E4 | 154.00 | 125.00 | 67.00 | 16.00 | 54.31 |
| 54E5(54E1AHC) | 159.00 | 140.00 | 70.20 | 16.00 | 54.42 |
| 55E1 | 155.00 | 134.00 | 62.00 | 19.00 | 56.03 |
| 56E1(BS113Lb) | 158.75 | 140.00 | 69.85 | 20.00 | 56.30 |
| 60E1(UIC60) | 172.00 | 150.00 | 72.00 | 16.50 | 60.21 |
| 60E2 | 172.00 | 150.00 | 72.00 | 16.50 | 60.03 |
Integrated Supply Capability
Beyond supplying steel rails, Glory Rail supports complete track systems by providing coordinated rail accessories for installation and long-term operation. Our supply scope includes rail fastenings and clamps, rail clips, steel base plates, fishplates, rubber pads, and related fixing components used in both permanent and temporary track installations.
By sourcing rails and accessories as an integrated package, compatibility between rail sections, fastening systems, and support structures can be better controlled. This approach helps reduce installation issues on site, shortens procurement cycles, and simplifies quality coordination across different track components.
CONTACT US NOW
Looking for train tracks suitable for your project?
Share your application details and our engineering team will provide technical guidance.