24kg Rail
The 24kg light steel rail is a heavy-duty solution designed for demanding industrial and transportation systems. Compliant with GB/T 11264-2012 standards, it is available in two premium grades: Q235 low-carbon steel for general durability and 55Q high-carbon steel for extreme wear resistance. With a weight of 24.46kg/m and robust dimensions (107mm height x 92mm base), this rail excels in main haulage tracks, railway sidings, and heavy machinery transport, offering superior load-bearing capacity and long-term reliability in harsh environments.
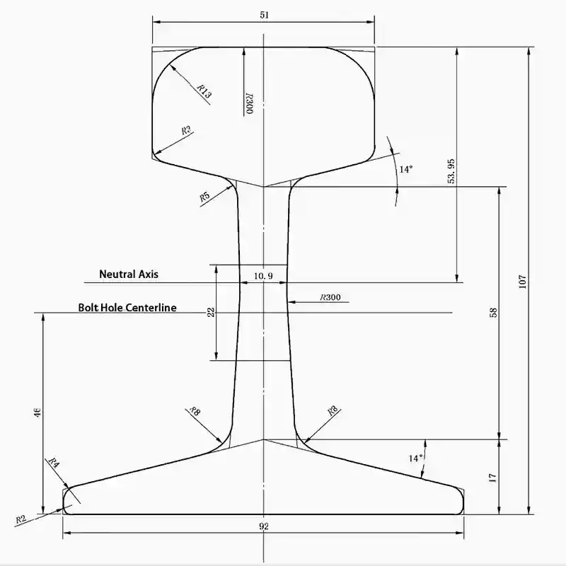
Specifications of 24kg Rail:
Size: 24kg / 24kg light rail
Length: 6m,8m,10m or other length according to customers’ requirement
Material: Q235B,55Q
Standard: GB/T 11264-2012
Type: Light Rail
Rail Height: 107mm
Bottom Width: 92mm
Web Thickness: 10.9mm
Head Width: 51mm
Weight: 24.46kg/m
24kg Rail Material Parameter
Choose Q235 (ductile, corrosion-resistant) for mining logistics or 55Q (tensile strength ≥685MPa) for heavy-haul railway tracks, both fully compliant with GB standards.
Applications of 24kg Rail
The 24kg light rail is engineered for critical heavy-duty scenarios:
Mining & Quarrying Industry
Used in coal mines, metal mines, and quarries for hauling ore, machinery, and materials in open-pit and underground operations.
Railway Track Infrastructure
Applied in sidings, maintenance areas, and industrial lines for light locomotives across ports, yards, and logistics systems.
Heavy Manufacturing Plants
Rails for steel mills, cranes, and conveyors, designed to handle heat and load stress—55Q steel recommended for durability.
Large-Scale Construction Sites
Supports temporary railways for heavy machinery and long-term track systems in industrial parks and infrastructure projects.
Advantages of Our 24kg Rail
GB Standard Compliance
Meets GB/T 11264-2012 quality benchmarks for consistent performance in global projects.
Dual-Material Versatility
Q235: Cost-effective, corrosion-resistant, and ductile for general mining logistics. 55Q: High-strength (≥685MPa) and wear-resistant for heavy railway haulage.
Ample Inventory & Fast Delivery
Regular stock of standard lengths (6m/8m/10m) ensures dispatch within 7-15 days for urgent orders.
Customization for Precision
Tailor-cut lengths to minimize material waste Precision machining: Angle cutting for curved tracks and pre-drilled holes for fastener integration. Optional surface treatments: Galvanization (Q235) or heat treatment (55Q).



Customization Services
Glory Rail offers end-to-end solutions to meet your project’s unique requirements:
Length Customization
Standard or custom lengths (up to [insert max length]) to match exact track layouts.
Precision Machining
Bevel cutting for seamless curved track alignment.
Punching and drilling for quick installation with rail clips and bolts.
Surface Treatments
Hot-dip galvanization: Enhances corrosion resistance in coastal or humid environments
Anti-rust painting: Cost-effective protection for general industrial use
Optimize Your Track System
Upgrade your railway with advanced accessories that boost durability and reduce maintenance

Rail Clips
Securely fasten rails to sleepers, maintaining gauge stability under dynamic loads.

Fish Plates
Connect rail ends seamlessly, ensuring smooth transitions and load distribution.

Rail Pads
Reduce vibration and noise, distribute dynamic loads evenly, and prolong sleeper life

Steel Soleplate
enhance railway durability by distributing loads, adjusting track alignment, damping vibrations.
Request a Tailored Quote
To get a free quote for 24kg light rails, please provide:
- Quantity required
- Material preference (Q235 or 55Q)
- Desired length (standard or custom)
- Application scenario (e.g., coal mine, railway siding)
- Special requirements (machining, surface treatment)